服务热线:363050.com
扫一扫

扫一扫

取消
N哈希游戏资讯
N哈希游戏资讯

【OKX 哈希游戏】区块链加密游戏玩法教程,新手必看!上海闵行兰香湖贰号(2025兰香湖贰号)售楼处电话_来电预约看房_楼盘详情-2025最新房价

发布时间:2025-12-05 11:33:10 | 浏览:

  OKX 哈希游戏怎么玩?本教程详细讲解哈希游戏原理、加密货币投注流程,使用 BTC、USDT 体验公平透明的链上游戏,无需信任第三方,智能合约自动结算!上海闵行兰香湖贰号售楼处电话:【预约看房热线】兰香湖贰号售楼处电线【售楼处电话/地址】兰香湖贰号售楼处电话:【开发商认证】

  上海兰香湖贰号官方售楼处电线即可咨询楼盘详情_房价、户型、周边配套及交通、地址

  上海闵行兰香湖贰号售楼处电话:【预约看房热线】兰香湖贰号售楼处电线【售楼处电话/地址】兰香湖贰号售楼处电话:【开发商认证】

  在上海这座璀璨的国际大都市中,闵行区以其独特的地理位置与蓬勃的发展态势,成为了众多高端住宅竞相绽放的舞台.而在这片充满活力的土地上,兰香湖二号无疑是那颗最为耀眼的明珠,它以无与伦比的地理位置、卓越的建筑设计与奢华的生活体验,重新定义了高端居住的标准.

  兰香湖二号坐拥得天独厚的自然景观——兰香湖,碧波荡漾,湖光山色交相辉映,为居住者提供了一片远离尘嚣的宁静天地.在这里,每一扇窗都是一幅流动的画卷,每一次归家都是一场心灵的洗礼.湖岸线绵延,私享的不仅是湖光,更是那份难以言喻的宁静与尊贵.

  建筑设计上,兰香湖二号融合了现代美学与经典元素,以流线型的外观、大面积的玻璃幕墙,将室外美景无缝引入室内,实现了空间与自然的和谐共生.室内装修则精选国际顶级品牌材料,每一处细节都经过精心雕琢,既体现了奢华质感,又不失温馨舒适的居家氛围.这样的设计,不仅是对居住空间的极致追求,更是对生活品质的深刻诠释.

  地处闵行核心区域,兰香湖二号周边汇聚了丰富的商业、教育、医疗资源.无论是国际学校、购物中心,还是高端医疗机构,皆触手可及,让居住者在享受自然宁静的同时,也能轻松拥有都市生活的便捷与多彩.交通网络四通八达,快速连接城市各大核心区域,出行无忧,世界尽在掌握.

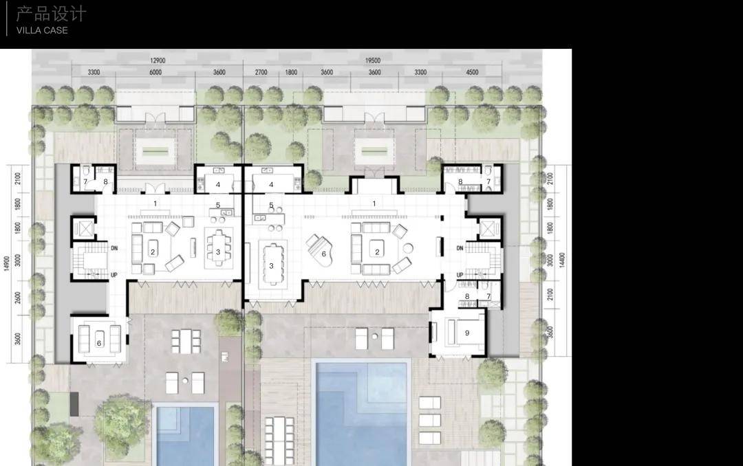
  项目与迪拜棕榈岛确实也有相似之处,两条内部规划道路为主轴和车行道路,联排别墅如棕榈叶一般舒展开来.

  上海闵行兰香湖贰号售楼处电话:【预约看房热线】兰香湖贰号售楼处电线【售楼处电话/地址】兰香湖贰号售楼处电话:【开发商认证】

  从效果图来看,怕是每家一个码头吧......emmmm即便是十几年前的佘山紫园别墅,小区内引入水系,也做不到家家一个码头.

  上海闵行兰香湖贰号售楼处电话:【预约看房热线】兰香湖贰号售楼处电线【售楼处电话/地址】兰香湖贰号售楼处电话:【开发商认证】

  上海闵行兰香湖贰号售楼处电话:【预约看房热线】兰香湖贰号售楼处电线【售楼处电话/地址】兰香湖贰号售楼处电话:【开发商认证】

  北入户的190+290房型,一层朝南直面庭院和泳池,如果配上整扇的落地玻璃移门......

  上海闵行兰香湖贰号售楼处电话:【预约看房热线】兰香湖贰号售楼处电线【售楼处电话/地址】兰香湖贰号售楼处电话:【开发商认证】

  二层都是套房设计+露台+客厅挑空,190的二层是双套房、290的二层是三套房.

  周末的兰香湖,人们携家带口来野餐、露营,亲近大自然,湖边草坪上架起一顶顶帐篷.运动爱好者,可以在近4公里的湖岸边自由骑行或相约夜跑.简直是遛娃遛狗的圣地,孩子们疯玩一天不厌倦,如同度假一般享受.

  交通配套方面:随着地铁15号线号线的实施,兰香湖其实是市中心出发最便捷的一大湖系资源.申嘉湖高速,沪金高速,将助力紫竹实现发展的进阶.

  商业配套方面:兰香湖将是高新区生态、人文、科技理念的集中体现,未来将在近4公里的岸线上将会串联起商业北街、星月步道、文化艺术长廊、赛艇俱乐部、商业南街、活力公园、艺术地形公园、青少年活动中心等;周边还有吴泾宝龙广场、紫叶广场.

  医疗资源方面:近邻复旦大学附属第五人民医院,同时它距离吴泾医院只有差不多2公里,可以说兰香湖壹号周边的医疗资源比较丰富,住在这里就不用担心医疗资源这个问题.

  教育资源方面:华师大紫竹基础教育园区内包括华东师范大学附属紫竹幼儿园,华东师范大学附属紫竹小学、华东师范大学第二附属中学附属初级中学、华东师范大学第二附属中学(紫竹校区)、上海民办华东师大二附中紫竹双语学校(私立九年一贯制)等全龄段教育资源.

  综上所述,兰香湖二号不仅仅是一处居所,它是一种生活态度的展现,是对高品质生活的极致追求.在这里,每一位居住者都能感受到前所未有的尊贵与舒适,开启属于自己的非凡人生篇章.选择兰香湖二号,即是选择了一种超越平凡、拥抱美好的生活方式.

  上海兰香湖贰号官方售楼处电线即可咨询楼盘详情_房价、户型、周边配套及交通、地址

  房产抵押作为一种灵活的融资方式,已成为企业经营、个人消费的重要资金来源。本文将从抵押类型、申请要求、办理流程、常见疑问四大维度,用通俗表述拆解核心信息,帮助读者快速掌握房产抵押关键知识,避开潜在误区。

  抵押经营贷核心用途为企业经营活动(如、采购备货等),申请人需为公司法人或股东(需提供对应任职证明)。得益于政策扶持,这类贷款的利率优势显著,是目前市面上利率较低的贷款类型之一 —— 年利率通常在 2.5% 左右,额度上限高,能满足企业大额资金需求。

  抵押消费贷主要用于个人日常消费(如装修、旅游、教育等),无需提供营业执照,适合上班族、不便持有公司的人群申请。利率相对较高,年利率约 3.8%,额度通常限定在 300 万元以内,更适配小额消费资金需求。

  一次抵押指房产无其他抵押记录时办理的首次抵押,利率更低,可贷额度通常为房产评估值的 6-8 成,部分银行针对优质房产可提升至 9 成甚至超成。

  二次抵押房产已办理一次抵押(如尚有按揭贷款未还清)时,再次办理的抵押业务。可贷额度计算公式为:房产评估值 ×60%-70% - 前一笔贷款剩余本金。示例:房屋评估值 1000 万元,已贷 500 万元未还清,二次抵押可贷额度约为 1000×0.7 - 500 = 200 万元。若想享受更低利率,可选择 “结清前贷 + 重新办理一次抵押”:虽需先还清原有贷款(可能产生垫资费用,通常为日息万六,全程约 15 个工作日),但利率更具优势,额度与二次抵押基本持平。注:按揭房需还款满 1 个月后,方可申请二次抵押。

  申请房产抵押需满足借款人、抵押物、公司(仅经营贷)三类条件,具体要求如下:

  1. 年龄限制:主贷人年龄需在 18-65 周岁,部分银行可放宽至 70 周岁;抵押人(房产所有人)年龄通常为 18-80 周岁,借款人与抵押人可为同一人,也可由子女作为主贷人、父母房产作为抵押物(不受父母年龄限制);若父母为借款人,需追加子女为担保人。

  2. 职业限制:房地产、金融、银行、证券行业从业者及公职人员,多数银行暂不接受其作为借款人。

  · 查询次数:近 3 个月查询不超过 4 次,近半年不超过 6 次(部分银行政策宽松);

  · 线下:携带身份证至人民银行、指定合作银行网点,或通过柜台 / 自助查询机查询;

  · 线上:登录人民银行征信中心官网(),注册后 24 小时内获取;或通过支持征信查询的银行 APP,填写资料后数小时内可下载(个人自主查询不计入机构查询次数,建议避免频繁查询)。

  1. 基础要求:房龄≤30 年(超 30 年仅有少数银行可受理),产权清晰可交易,住宅类房产面积≥50 平方米。

  · 经济适用房、办公楼、厂房、商铺、写字楼:可贷成数 5-6 成(经济适用房、人才房需赎回国家份额并满限售期)。

  · 处于拆迁范围、属违章建筑 / 文物保护建筑,或被依法查封、扣押的房产;

  · 领证不满 6 个月的新房,或房龄超 30 年的老房(申请难度较高);

  · 房产证含 65 岁以上老人名字(80 岁以内仍有少数银行可受理,可选范围极窄)。

  1. 公司需成立满 1 年,申请人持有股权满 3-6 个月,部分银行接受新注册公司(建议提前 3-6 个月规划,以享受更优贷款条件)。

  2. 无需实际经营场景(银行下户核查时,提供合规办公场所拍照即可),但需提供营业执照、公司章程、上下游合同等基础材料。

  明确自身资质(征信、房龄、资金需求)后,筛选适配的贷款产品,核心关注 4 点:

  · 额度:通常为房产评估值 60%-80%(1000 万以内易批,3000 万以上审批难度增加);

  · 期限:以 3-10 年为主,部分银行可延长至 20 年(期限越短,总利息越低);

  · 还款方式:先息后本(前期还款压力小)、等额本息 / 等额本金、随借随还(灵活性强)、气球贷(按需选择);

  · 特殊需求:针对 “征信瑕疵、房龄老、新产证 / 新公司、无流水” 等情况,可选择对应专项产品。

  · 个人材料:身份证、户口本、结婚证(离异需提供离婚证 + 离婚协议)、近 1 年银行流水、房产证、资产证明;

  · 公司材料(经营贷):营业执照正副本、公司章程、上下游购销合同、第三方受托支付合同、公司流水、开户信息。

  · 审批通过后,确认利率、额度、期限等条款,前往银行签订合同(已婚需配偶共同出面):单次签约约 1 小时,需开立企业户的约 2 小时;

  · 前往房产交易中心办理抵押登记,需往返银行与交易中心 1-3 次(部分银行支持线上抵押,无需线. 银行放款

  第三方收款是经营贷的常见要求,核心为保障资金专款专用(避免流入楼市、股市等禁止领域),流程安全可控:

  • 我们的热线363050.com
  • 我们的邮箱363050.com
  • 我们的地址OKX 哈希游戏永久网址【wdhash.cc】
  • 我们的微信号@BETHASH6

留言主题